私たちが家づくりのなかで一番悩んだのが「間取り」でした。

間取りは一度決めてしまうと簡単に変えられないため、後悔しないように我が家なりに大切にしたいポイントを整理し、設計士の方に図面に落とし込んでもらいました。
今回は我が家の間取りづくりで意識したことをご紹介します。
居場所をたくさんつくる
家族それぞれが心地よく過ごせるように「居場所の多さ」を意識しました。
- 窓ベンチを取り入れて、ちょっと腰かけたり本を読んだりできるスペースに。
- ハンモックも吊るせるように計画し、遊び心のある空間に。
- ソファ、オットマン、ラグの上といった形でその日の気分で座る場所の選択肢を増やしました。

小さな居場所が家のあちこちにあると、気分やシーンに合わせて好きな場所を選べるので、暮らしが豊かになると感じています。
また、家族や友人が遊びにきた時に居場所が多いと好きな場所に座ってもらえるので、かしこまった感じが薄れ、緊張感も和らぐと思います。
ソファしか座る場所がない場合、思春期の子供はすぐに自分の部屋に行ってしまいがちですが、いろんな場所に居場所があれば、子供はリビングで自分の居場所を見つけてくれる気がします。
回遊動線を活かして扉を減らす
なるべく家の中を回れるように「回遊動線」を取り入れました。

- 扉を少なくすることで建具費用を減額できる
- エアコン1台でも空気が流れやすく、温度ムラが少なくなる
特に冷暖房効率は住んでからの快適さに直結するので、大きなメリットだと思います。
回遊動線は行き止まりがないというメリットはありますが、その一方でスペースを多く使ってしまうので坪数が大きくなるデメリットもあります。
回遊動線を多用する際は、本当にその動線を通るのかをしっかり考えた上での採用をオススメします。
キッチンからウッドデッキへスムーズに
キャンプが好きな我が家はウッドデッキで食事を楽しむのが夢でした。そのために、
- キッチンからダイニングテーブルまでの距離
- キッチンからウッドデッキまでの距離
この2つをほぼ同じにし、料理を運びやすくしました。小さな工夫ですが、アウトドアリビングを日常に取り入れやすくなります。

さらに、ウッドデッキの上が完全に屋根にかかるように軒を長く出すことで、春夏秋冬いつでも外に出やすくしました。
老後を見据えた寝室配置

将来のことも考え、寝室は1階に配置しました。階段の上り下りをしなくても生活が完結できるようにしておくと、老後の負担が少なくなります。
デメリットとして、リビングやキッチンの音が聞こえやすくなる。基礎が大きくなるので費用が上がる。ここを理解しておくと良いかもしれません。
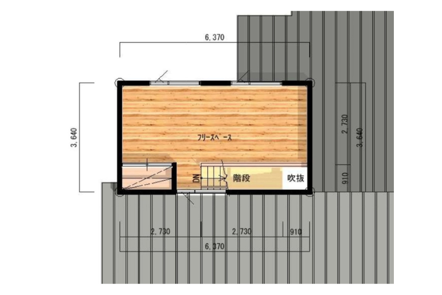
フリースペースで柔軟に使える2階
2階は大きなフリースペースにしました。
- 子どもができたら壁で仕切って個室に
- 夫婦だけの時期は広々とした多目的スペースに

子供部屋をつなげて将来壁で仕切るという間取りは最近ではよく見るかと思います。我が家の2階は部屋すら作りませんでした!
子供が何人できるかもわかりませんし、大きな空間であれば活用方法は無限大だと考えました。(ジムスペース・ラウンジのようなインテリア・来客の寝室・室内ドッグラン・子供が望めば2階全て子供部屋)
ライフスタイルに合わせて変えられる「余白」を残すことをが大切だと思います。
トイレの配置で音問題を解決
トイレは 居室からなるべく離して配置。生活音のストレスを減らすために、あえて距離を取るようにしました。
アパート住んでいると感じるトイレの音問題。リビングや寝室からは絶対に離したい!そんな考えの方は多いと思います。

トイレは家の角に配置し、横に洗面所を設けることでトイレ内に手洗いを設置する費用を抑えました。
さらに、玄関からは見えないけれど玄関の近くに洗面所とトイレを配置することで、帰ってきた時にすぐに手を洗うこともできます。
我が家のトイレのこだわりはこちらの記事で☟
脱衣ランドリーとファミクロを横並びに
毎日の家事が楽になるよう、
- 脱衣室兼ランドリー
- ファミリークローゼット
を横並びにしました。洗濯して、乾かして、そのまま収納できる流れができるので、家事効率が大幅にアップします。

2ウェイ玄関はあえて不採用
最近人気の2ウェイ玄関も検討しましたが、我が家では採用しませんでした。
- 間取り上、玄関が狭く感じる
- 家族動線の使用頻度が少ないと予想できた
実際の生活スタイルを考えると不要と判断し、その分間口を大きく取り、人の出入りがスムーズになるよう設計しました。

いくら家族動線を作ったとしても、遠回りなルートだと使用頻度が減る可能性は高いと思います。2ウェイ玄関を検討している方は、家族動線の方がスムーズに移動できるルートかを確認すると良いかと思います。
我が家の玄関のこだわりはこちら☟
まとめ
我が家の間取りで大切にしたのは、
- 家族が思い思いに過ごせる「居場所の多さ」
- 将来を見据えた「柔軟さと暮らしやすさ」
- 家事や空調効率といった「日常の快適さ」
一見すると細かい工夫ですが、積み重ねることで「長く快適に住める家」につながると感じています。
家が建つと間取りは簡単には変えることができません。設計士さんの作ってくれた間取りであっても、あなたにとっての正解の間取りとは限らないのです。
何回も見直し、春夏秋冬・晴れの日・雨の日・雪の日・平日・休日と、様々なパターンで暮らしのシュミレーションをすることが大切です。
これから間取りを考える方の参考になれば嬉しいです。




コメント